Калуга
Самара
Калуга
Сергиев Посад
Калуга
Самара
Сергиев Посад
О КОШЕЛЕВ-Проекте
Жизнь в Кошелев-Проекте
Проекты
Кошелев-Парк
Гаражный комплекс
Все комплексы
Социальные объекты
Школа
Детские сады
Поликлиника
Храм
Фотоотчеты
Ход строительства
Документация
Партнеры
Выбрать квартиру
Акции и скидки
Как купить
Контакты
+7 (4842)
909-600
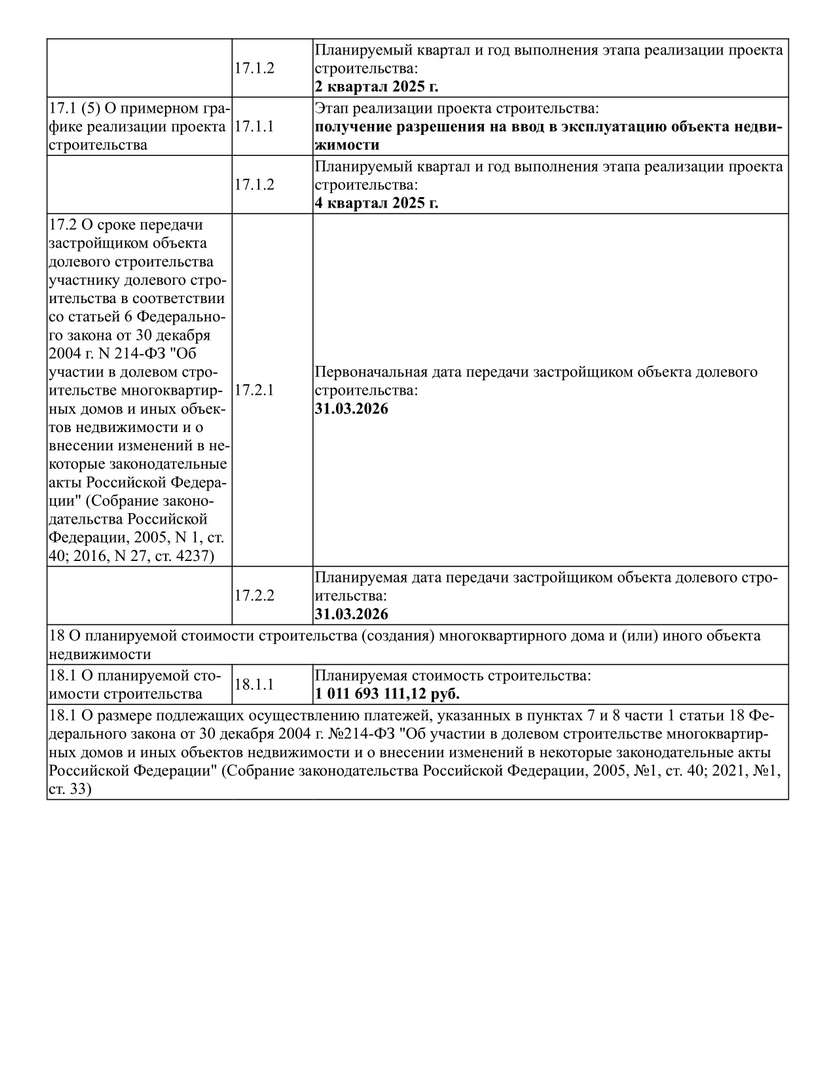
Проектная декларация от 07.11.2025 "Кошелев Парк" очередь строительства 1, дом № 1 по ГП.
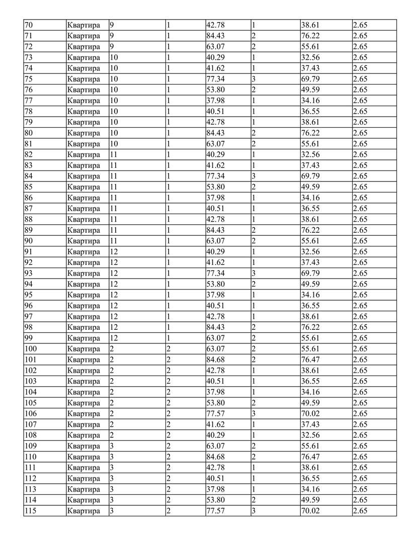
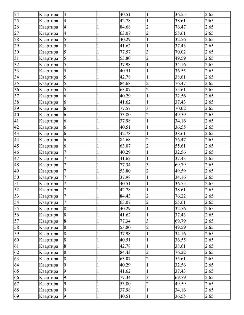
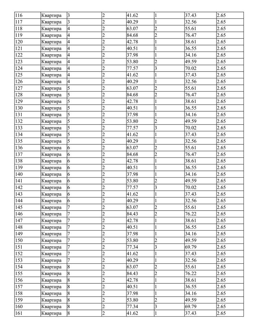
Проектная декларация.
Хотите купить квартиру? Позвоните нам!
Проконсультируем и проведем бесплатную экскурсию!
+7 (4842) 909-600
Оставить заявку
О Кошелев-проекте
Жизнь в Кошелев-Проекте
Социальные объекты
Фотоотчеты
Ход строительства
Партнеры
Корпорация КОШЕЛЕВ
Контакты
Жилые комплексы
«Кошелев Парк»
Связаться с нами
+7 (4842) 909-600
info@k-inc.ru
Заказ звонка
+7 (4842) 909-600
Время звонка
с 8:00 до 13:00
с 12:00 до 17:00
с 16:00 до 19:00
Отправить
Заполните обязательные поля формы
Нажимая на кнопку «Отправить», Вы даете согласие на обработку персональных данных в соответствии с
политикой конфиденциальности
Запрос отправлен! Мы свяжемся с Вами в ближайшее время